福岡ホーム「仲介手数料無料0円」新築戸建て物件!
こちらの物件であれば、諸費用の仲介手数料約「146万円」がお得になります!
閑静な住宅街で前面道路は交通量の少ないので、駐車も安心。お庭も確保した物件です♪
小学校は、長住小学校区・中学校は、長丘中学校区の物件です。
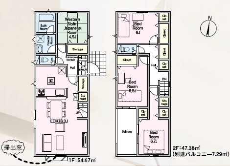
LDKは広々約18.3帖+約4.5帖の和室付き・2階の主寝室は約6.7帖・6.5帖・6.0帖の4LDKです!
建物は、地震に強いお家耐力外壁材ダイライト使用・耐震等級3等級取得物件で、
設計・建設住宅性能評価書も取得予定物件となっております。
HP掲載物件以外の物件も多数取り扱い中。
福岡市南区エリアで住宅購入を検討中の方・不動産でお困りの方、福岡ホームにお任せください。
☆住宅購入相談は、福岡ホームにお任せください☆
仲介手数料無料サービスについては、こちらをご確認ください。
↓↓↓
福岡ホーム仲介手数料無料サービスについて
福岡ホームのご紹介動画は、こちらからどうぞ!
↓↓↓
福岡ホーム簡単ご紹介動画はこちら
福岡ホームの新築戸建て購入ガイド~物件探しからお引渡しまで~
↓↓↓
新築戸建て購入ガイドはこちら
福岡市南区の魅力をご紹介!!
↓↓↓
福岡市南区の魅力をご紹介!!
お気軽にお問合せください!!