売却物件情報Real Estate Info

(成約済み)福岡市南区警弥郷3丁目新築戸建て2号棟【仲介手数料無料0円】

  • 福岡市南区
  • 新築一戸建(2号棟)

更に今なら10万円相当キャッシュバックキャンペーン実施中。

マルキョウ警弥郷店等周辺徒歩圏内に商業施設も豊富で便利な立地です♪

小学校は、弥永西小学校区・中学校は、日佐中学校区の物件です。

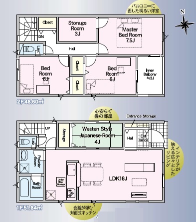
LDKは広々約16.0帖+4.0帖の和室付き・2階主寝室は約7.5帖+ストレージルーム付き・洋室6.0帖・洋室6.0帖・インナーバルコニー付の物件です!

建物は、地震に強いお家耐力外壁材ダイライト使用・耐震等級3等級取得物件で、

設計・建設住宅性能評価書も取得予定物件となっております。

HP掲載物件以外の物件も多数取り扱い中。

南区エリアで住宅購入を検討中の方・不動産でお困りの方、福岡ホームにお任せください。

 
☆住宅購入相談は、福岡ホームにお任せください☆

 

仲介手数料無料サービスについては、こちらをご確認ください。
↓↓↓
福岡ホーム仲介手数料無料サービスについて

 

福岡ホームのご紹介動画は、こちらからどうぞ!
↓↓↓
福岡ホーム簡単ご紹介動画はこちら

 

福岡ホームの新築戸建て購入ガイド~物件探しからお引渡しまで~
↓↓↓
新築戸建て購入ガイドはこちら

 

福岡市南区の魅力をご紹介!!
↓↓↓
福岡市南区の魅力をご紹介!!

 

お気軽にお問合せください!!

  • noimage
  • noimage
  • noimage
  • noimage
  • noimage
  • noimage
  • noimage
  • noimage
  • noimage
  • noimage
  • noimage
  • noimage
  • noimage
  • noimage
  • noimage
  • noimage
  • noimage
  • 価 格
    成約済み
  • 所在地
    福岡市南区警弥郷3丁目
  • 交 通
    西鉄バス「老司神社」バス停徒歩約7分
  • 間取り
    4LDK
  • 階建・階
    2階建
  • 築年月
    2025年6月完成予定
  • 建物構造
    木造
  • 土地権利
    所有権
  • 用途地域
    第一種中高層住居専用地域
  • 駐車場
    2台
  • 延べ面積
    100.44㎡
  • 敷地面積
    111.60㎡
  • 総戸数
    総区画数2区画/販売区画数0区画
  • 現 況
    建築中
  • 引渡し
    相談
  • 小学校区
    弥永西小学校
  • 中学校区
    曰佐中学校
  • 建築確認・確認番号
    第R07SHC101242号
  • 設 備
    全居室ペアガラス/蛇口一体型浄水器/対面キッチン/インナーバルコニー/24時間換気システム/人感センサー照明/設計住宅性能評価書/建築住宅性能評価書
  • 備 考
    九州電力・公営水道・本下水・都市ガス ※上記毎月の支払い目安は、住信SBIネット銀行住宅ローン・変動金利0.81%・35年ローンにて試算した内容になります。2025.8.1時点。 ※借入時期によって上記金利は変動する可能性がございます。詳細に付きましては、お問い合わせください。
  • 取引態様
    媒介

〈 物件に関するお問い合わせ 〉

お電話でのお問い合わせはこちらTEL. 092-515-3461

エリア検索

一覧を見る

お問い合わせ来店予約

Line

Instagram